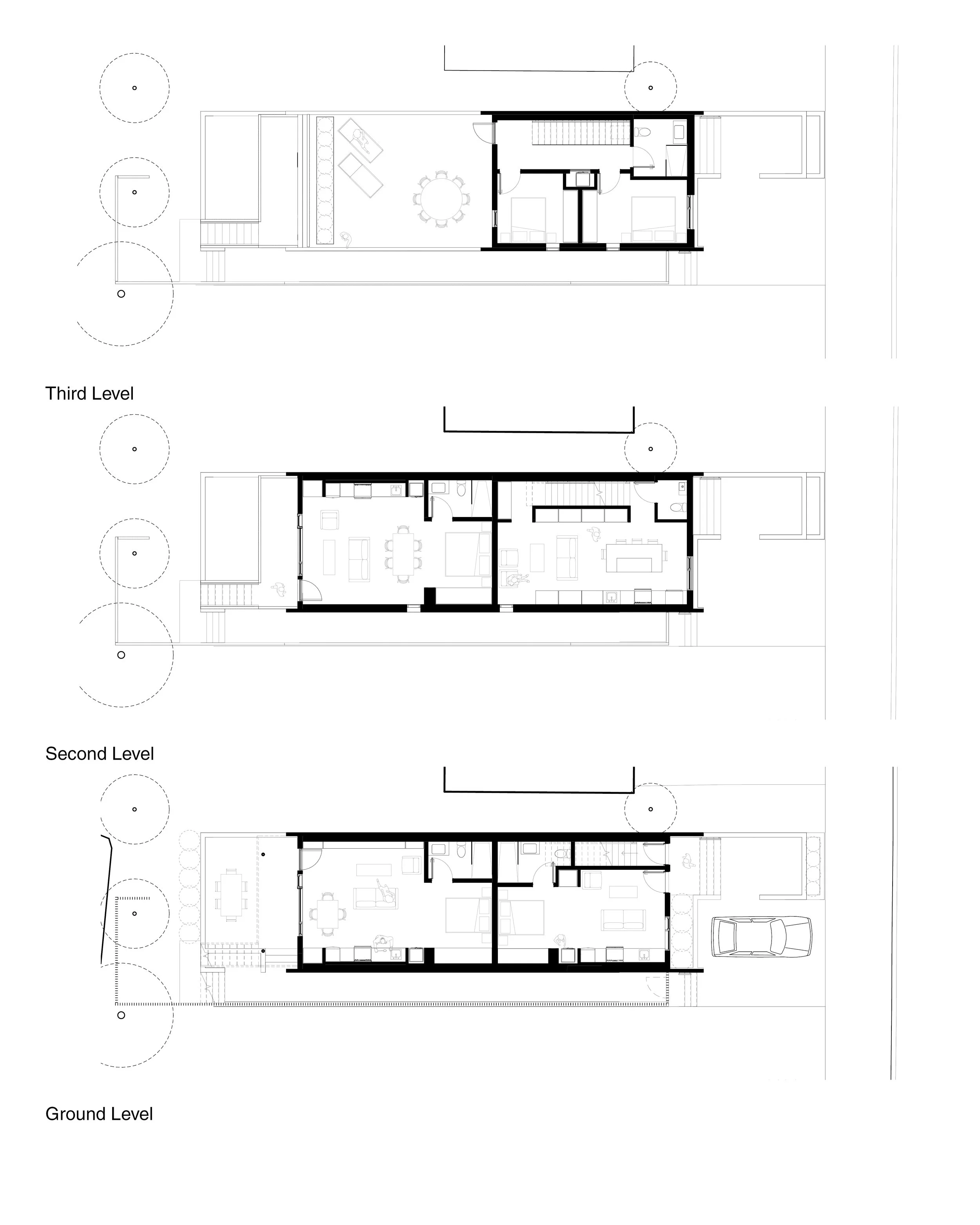
A narrow apartment building in an east coast city.

A compact multi-unit building responding to the narrow lots of the Halifax Peninsula. This project is a collaboration with a builder we work with on custom homes. They are expanding their business to include developments bringing gentle density to the North End of Halifax.

This project was recently published in allNovaScotia, read about it here.


Project
information.

Location
Halifax, Nova Scotia

Size
2,950 square feet

Status
Construction Start 2024

Team
MRB Contracting
Sani Engineering


Previous
Previous

A sauna for a friend in a familiar place.

Next
Next

...